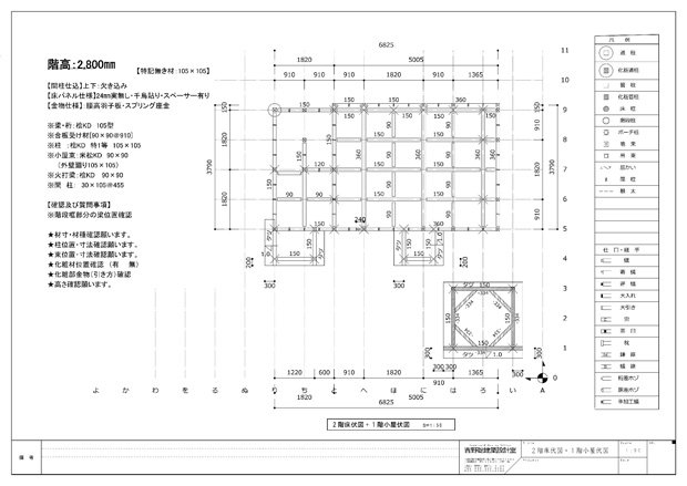
伏図(ふせず)とは。
建物の構造図の一つで、建物の構造部分を上から見下ろしたように描かれた図面のことです。
柱や梁、基礎などの配置、寸法、構造設計の意図などを読み取ることができます。縮尺は100分の1、または50分の1が一般的です。
・伏図の役割
伏図は、建物の骨組みとなる部分の詳細を示しており、耐久性のある建築物を設計するために非常に重要です。また、施工業者は伏図の情報をもとに正確な工事を進めることができます。
・伏図の種類
伏図にはいくつかの種類があり、それぞれが建物の異なる部分の構造を示しています。代表的なものには以下の種類があります。
①基礎伏図(きそふせず)
建物の基礎部分の構造、形状、寸法、鉄筋の配置、アンカーボルトの位置などを表す図面です。建物の重量や外力を地盤に伝える重要な部分の図面であり、建物全体の構造安全性を確保するために不可欠です。
②床伏図(ゆかふせず)
床の構造を表す図面で、床組を上から見下ろすように描かれています。床の仕上げ材がない状態で描かれ、床下に隠れる部分を確認できます。基礎、柱、梁、スラブ(床の構造となる板やコンクリート)などの位置が記載されます。
③梁伏図(はりふせず)
柱やスラブ、地中梁、基礎梁などが記載された図面で、梁の断面設計などを行う際に利用されます。
④天井伏図(てんじょうふせず)
天井の形状や仕上げ材の種類、張り方など、天井の仕上げに関する情報を表す図面です。
⑤小屋伏図(こやふせず)
屋根裏部分の構造を示す図面です。
⑥屋根伏図(やねふせず)
屋根の形状や構造を示します。

木造建築 土台伏図

木造建築 2階床梁伏伏図
これらの伏図は、木造建築の工程の「建て方」時に利用します。

伏図を見ながら作業をする建て方。
この伏図について、建築CAD、3DCAD、BIMの発達で、描ける人が少なくなっているとの事です。
ということは、正しいか間違っているのかの確認もできなくなっています。
Aiによる自動化も大賛成ですが、基本が理解できているからこそと感じています。
例えば、今日の建築構造の伏図について。
伏図を描くポイントは、プランニング(基本計画)の時から始まっています。
それは、1階のプランと2階のプランをどのように組み合わせるかが重要になります。
更に言うと、1階と2階の耐力壁線を一致させるかで、構造が単純になります。
単純になると言う事は、構造上安価で強い建築が出来るんです。
と言って、構造の事ばかり気にし過ぎて、デザインやプランニングが疎かになるなんて話を耳にします。
1階・2階・屋根の壁・柱・梁がどのような関係になるのか。
また、構造材はどのような寸法になるのか。
木材の一般流通規格寸法はいくつなのか。
更に、仕上材は何を使うか。
などによって変わる木造建築の伏図を描けることにより、木造建築のデザイン・増築・改修・リフォームも容易になってきます。
企業、事務所、工場、倉庫、店舗、飲食店、アパート、マンション、住宅、各種病院・歯科医院、公共建築などのデザイン・設計・監理。
耐震診断、耐震補強設計、耐力度調査、建築確認申請手続き、
特殊建築物定期報告書検査作成
山梨県甲府市
吉野聡建築設計室
山梨県 甲府市 徳行3-3-25
TEL 055-222-6644
FAX 055-222-6100
mail yao@ruby.plala.or.jp
Web https://sekkei-y.com
facebook https://www.facebook.com/yaosekkei

加藤忠宏
伏せ図ですか、初めて聞く言葉です
保険屋あい
こんにちは。
伏図、あまり見たことのない図ですね。
建築素人には、どっちから見た図なのか、ピンときません。
実物と比べて初めて理解できるような気がします。